DUOVENT COMPACT DV 500 D TOP heat recovery unitVětrací jednotka s rekuperací tepla
Catalog sheet | ![]() | Service instructions | ![]() | Ecodesign | ![]() | 2D/3D CAD | – | Toto zboží není možno objednat přes internet, kontaktujte naše obchodní oddělení nebo navštivte naše pobočky. |
| nomin. průtok [m3/h] | napětí [V/Hz] | vent. přívod/odvod - max. příkon [W] | vent. přívod/odvod - proud [A] | účinnost* [%] | max. průtok vzduchu [m3/h] | hmotnost** [kg] |
|---|---|---|---|---|---|---|
| 500 | 1x230 V / 50 Hz | 145/120 | 0,6/0,5 | 88 | 560 | 110-122 |
* při nominálním průtoku vzduchu, te = -12 °C/90 % r.v., ti = 22 °C/50 % r.v., te = 35 °C/35 % r.v. (LÉTO); ** v závislosti na konkrétním provedení. Výkon vodního chladiče DCC pro te = 35 °C/35 % r.v., tw = 6/12 °C. Výkon vodního ohřívače DCA pro te = 10 °C, tw = 80/60 °C. Výkon vodního ohřívače DCB pro te = 10 °C, tw = 45/35 °C. Výkon přímého výparníku DX pro chladivo R410A, te = 35 °C/35 % r.v., tvyp= 6 °C.
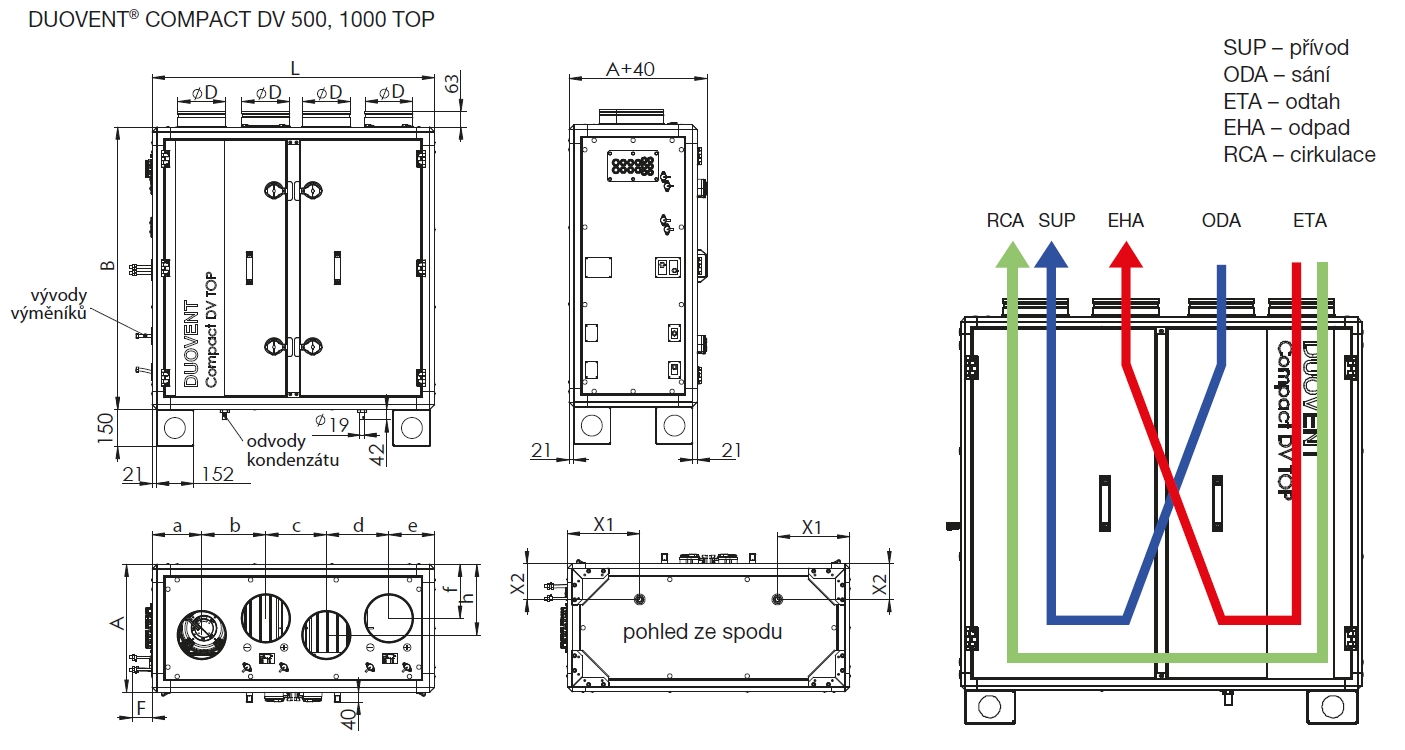
![]() | Skříň Patentovaný modulární systém ISOSTREAM® se stěnovými panely tl. 45 mm, které jsou vyrobeny z ocelového pozinkovaného plechu s vnějším lakováním v odstínu RAL9002 (šedobílá). Panely jsou uvnitř vyplněné zvukovou a tepelnou izolací z nehořlavé skelné minerální vlny. Pro usnadnění servisu je skříň jednotky vybavena otevíratelnými dveřmi se zámky. Kruhová hrdla jsou opatřena gumovým těsněním, čtyřhranná hrdla jsou připravena na osazení tlumicí vložky s rámečkem 20 mm. Rám jednotky je vyroben z hliníkových profilů, stěnové panely jsou do rámu přišroubovány. Vývody kondenzátu od rekuperačního výměníku a chladiče jsou umístěny vždy ve spodním panelu jednotky a jsou připraveny pro napojení protizápachového sifonu. Na přání zákazníka je možné plášť jednotky opatřit atypickou povrchovou ochranou s vyšší korozní odolností. | |
![]() | Ventilátory Na přívodní i odvodni straně jednotky je montován ventilátor s dozadu zahnutými lopatkami. Oběžné kolo je vyrobeno z kompozitního materiálu a je staticky a dynamicky vyváženo. | |
![]() | Motor Na oběžném kole ventilátoru je napřímo namontován EC motor. Motor ventilátoru je možné plynule řídit externím signálem 0–10 V. Motor je vybaven vlastní vestavěnou tepelnou ochranou. Třída účinnosti motoru IE4, krytí elektromotoru IP54. | |
![]() | Výměníky Jednotka je v závislosti na provedení vybavena vodním nebo elektrickým ohřívačem vzduchu. Pro potřeby letního chlazení vzduchu je montován vodní chladič nebo přímý výparník. Pro potřeby bivalenčního ohřevu je možné výparník vyrobit v reverzibilním provedení. Výparníky jsou standardně navrženy pro chladivo R410A a R32. Vodní ohřívače a chladiče mají standardně měděné trubky a hliníkové lamely v pozinkovaném ocelovém rámu. Pro potřeby vyšší korozní ochrany je možné výměníky opatřit dodatečnou antikorozní ochranou. Elektrické ohřívače mají standardně hladké topné tyče a jsou vybaveny provozním termostatem se spouštěcí teplotou 60 °C a havarijním termostatem s ručním resetem a spouštěcí teplotou 120 °C. | |
![]() | Rekuperace Rekuperační protiproudý výměník se zcela oddělenými proudy přívodního a odvodního vzduchu je vyroben z hliníku. Součástí je bypass s klapkou, která plně řídí vstup vzduchu do výměníku nebo do bypassu. Na přání lze rekuperátor dovybavit cirkulační nebo směšovací klapkou (v kódu jednotky označeno C nebo MX). | |
![]() | Filtr U velikosti 500, 1000, 1500, 2200 a 3600 jsou na přívodu a odtahu vzduchu filtry třídy filtrace F7 a M5 tloušťky 96 mm. U velikostí 5100, 6000, 7800 je možné umístit na sání čerstvého vzduchu a sání odtahovaného vzduchu 2 filtrační kazetové články různých tříd filtrace tloušťky 48 mm nebo 1 filtrační článek tloušťky 96 mm. Dostupné jsou filtry ve třídách filtrace od G4 do F9. Přístup k filtrům je přes revizní dveře na obslužné straně jednotky. Jednotku lze doplnit v případě vícestupňové filtrace filtračními kazetami MFL s filtračními vložkami MFR. | |
![]() | Klapky Hliníkové regulační klapky s přípravou pro osazení servopohonu jsou integrovány na sání čerstvého a odtahovaného vzduchu. Klapky splňují třídu těsnosti 2 dle EN1751. Na přání je možné jednotku dovybavit klapkami v třídě těsnosti 3. | |
![]() | El. připojení Napájecí napětí 1x230 V/50 Hz nebo 3x400 V/50 Hz je závislé na vybavení jednotky. Přívodní kabely, kabely k čidlům a silové kabely k ventilátorům se do jednotky přivádějí přes plastové průchodky ve stěně jednotky. Uvnitř jednotky jsou pro vedení kabelů připraveny gumové průchodky s membránou. | |
![]() | Regulace Jednotka je standardně vybavena digitální regulací Digireg® dle konfigurace jednotky. V případě, že je jednotka vybavena systémem MaR přímo z výrobního závodu, jsou elektricky připojena a odzkoušena všechna čidla a pohony. Ovládací skříň je umístěna na stěně jednotky (v případě atypického umístění ovládací skříně systému MaR je nutné toto konzultovat s výrobcem a specifikovat v objednávce). | |
![]() | Hluk Hluk uvedený v tabulkách představuje hladiny akustického výkonu na jednotlivých hrdlech jednotky s korekcí váhového filtru A. Akustické parametry jsou v toleranci ±3 dB. | |
![]() | Varianty Jednotlivé varianty jednotky se rozlišuji dle výbavy pomocí kódu. Atypické provedení je nutné konzultovat. | |
![]() | Montáž Ve vertikální poloze s hrdly nahoře (popř. nahoře a do stran). Rozlišuje se levá a pravá varianta. Před a vedle jednotky je třeba mít manipulační prostor pro potřeby servisních zásahů, výměny filtrů apod.. Pod jednotkou musí být prostor pro instalaci sifonu pro odvod kondenzátu. Konkrétní rozmístění hrdel vzhledem k obslužné straně jednotky je nutné specifikovat viz. dále. Jednotku je nutné montovat se spádem 5 % směrem k odvodnímu hrdlu kondenzátu. Potrubí VZT se připojuje na připravená kruhová DUOVENT® DV TOP 500,1000,1500,2200,3600) nebo obdélníková hrdla (DUOVENT® DV TOP 5100,6000,7800) – doporučujeme mezi hrdla potrubí a jednotku montovat pružné manžety pro eliminaci přenosu vibrací z jednotky do potrubí. Obdélníková hrdla jsou integrována ve stěnovém sendvičovém panelu jednotky a rozteč rohových připojovacích otvorů je optimalizována pro připojovací příruby P20. | |
![]() | Informace Jednotka je určena pro větrání komerčních prostor. Montážní varianty umožňují přizpůsobení požadavkům stavby. Jednotka je určena pro trvalý provoz. Provedení jednotky pro větrání bazénových hal (verze kódu SP) konzultujte s našim technickým oddělením. | |
![]() | Podmínky záruky Zařízení DUOVENT® COMPACT DV TOP včetně řídicího systému DVAV, DCAV a DCOP musí být uvedeno do provozu výhradně Prodávajícím anebo osobou k tomu Prodávajícím určenou. Nedodržení této podmínky má za následek zánik práv Kupujícího z vadného plnění a ze Záruky za jakost. Bližší podmínky stanovuje Reklamační řád Prodávajícího. | |
| Hz, pro Q = 500 m3/h | 63 | 125 | 250 | 500 | 1000 | 2000 | 4000 | 8000 | Lwa |
|---|---|---|---|---|---|---|---|---|---|
| Lwa čerstvý | 32 | 40 | 48 | 52 | 53 | 54 | 47 | 44 | 59 |
| Lwa přívod | 37 | 47 | 56 | 64 | 69 | 71 | 65 | 61 | 75 |
| Lwa odtah | 34 | 43 | 51 | 57 | 60 | 60 | 54 | 53 | 65 |
| Lwa odpad | 33 | 41 | 51 | 59 | 61 | 64 | 57 | 54 | 67 |
| Lwa vnější plášť* | 30 | 43 | 50 | 48 | 44 | 41 | 28 | 20 | 53 |
* útlum pláště s hodnotou De dle EN1886. Údaje platí pro konfiguraci jednotky (integr. klapky, chladič vodní typ DCC, ohřívač vodní typ DCA, filtrační třída F7/M5.






Ecodesign














