DUOVENT COMPACT RV 6000 DCB heat recovery unitVětrací jednotka s rekuperací tepla
Catalog sheet | ![]() | Service instructions | ![]() | Ecodesign | ![]() | 2D/3D CAD | – | Toto zboží není možno objednat přes internet, kontaktujte naše obchodní oddělení nebo navštivte naše pobočky. |
| jmen. průtok [m3/h] | napětí [V/Hz] | vent. přívod/odvod* - příkon [W] | vent. přívod/odvod* - proud [A] | ohřívač-výkon* [kW] | účinnost* [%] | max. průtok [m3/h] | hmotnost bez MX/s MX [kg] |
|---|---|---|---|---|---|---|---|
| 6000 | 3x400 / 50 Hz | 2290/2000 | 3,3/2,9 | 35,1 | 78 | 6000 | 624-757/654-787 |
* Při jmenovitém průtoku vzduchu, te = -12 °C / 90 % r.v., ti = 22 °C / 50 % r.v., te = 32 °C / 40 % r.v. (LÉTO), teplotní rotor. Výkon vodního chladiče DCC pro te = 32 °C / 40 % r.v., tw = 6/12 °C. Výkon vodního ohřívače DCA pro te = 8 °C, tw = 80/60 °C. Výkon vodního ohřívače DCB pro te = 8 °C, tw = 45/35 °C. Výkon přímého výparníku DX pro chladivo R410A, te = 32 °C / 40 % r.v., tvyp= 6 °C.
![]() | Skříň Patentovaný modulární systém ISOSTREAM® se stěnovými panely tl. 45 mm, které jsou vyrobeny z ocelového pozinkovaného plechu s vnějším lakováním v odstínu RAL9002 (šedobílá). Panely jsou uvnitř vyplněné zvukovou a tepelnou izolací z nehořlavé skelné minerální vlny. Pro usnadnění servisu je skříň jednotky vybavena otevíratelnými dveřmi se zámky. Čtyřhranná hrdla jsou připravena na osazení tlumicí vložky s rámečkem 20 mm. Rám jednotky je vyroben z hliníkových profilů, stěnové panely jsou do rámu přišroubovány. Vývody kondenzátu od rekuperačního výměníku a chladiče jsou umístěny vždy ve spodním panelu jednotky a jsou připraveny pro napojení protizápachového sifonu. Na přání zákazníka je možné plášť jednotky opatřit atypickou povrchovou ochranou s vyšší korozní odolností. | |
![]() | Ventilátory Na přívodní i odvodní straně jednotky je montován ventilátor s dozadu zahnutými lopatkami. Oběžné kolo je vyrobeno z kompozitního materiálu a je staticky a dynamicky vyváženo. | |
![]() | Motor Na oběžném kole ventilátoru je napřímo namontován EC motor. Motor ventilátoru je možné plynule řídit externím signálem 0…10 V. Motor je vybaven vlastní vestavěnou tepelnou ochranou. Třída účinnosti motoru IE4, krytí elektromotoru IP54. | |
![]() | Regenerace Rotační regenerační výměník pro přenos tepla nebo pro přenos tepla a vlhkosti zároveň. Výměník je navržen pro provoz s teplotou okolí –20 °C až +55 °C. Rotor je střídavě navinut z rovné a rádlované vrstvy hliníkové fólie. Standardní výška vlny je 1,6 mm. Skříň rotoru je vyrobena z pozinkovaných nosných profilů. Těsnění mezi rotorem a skříní zajišťuje kartáčové těsnění, pro velikosti 6000 a 7800 je rotor vybaven vyplachovací komorou. Na přání lze montovat labyrintové těsnění rotoru s průměrnou hodnotou netěsnosti pod 1,5 % objemového průtoku. Pohon rotačního výměníku se skládá z elektromotoru se šnekovou převodovkou, řemenice a řemenu. Napájecí napětí elektromotoru je 1×230 V/50 Hz nebo 3×230 V/50 Hz. | |
![]() | Filtr Na sání čerstvého vzduchu a sání odtahovaného vzduchu je možné umístit 2 filtrační kazetové články různých tříd filtrace tloušťky 48 mm nebo 1 filtrační článek tloušťky 96 mm (do velikosti 800 je možné umístit pouze jeden filtr tloušťky 48 mm). Dostupné jsou filtry ve třídách filtrace od G4 do F9. Přístup k filtrům je přes revizní dveře na obslužné straně jednotky. Jednotku je možné doplnit v případě vícestupňové filtrace filtračními kazetami MFL s filtračními vložkami MFR, které jsou určeny pro montáž do potrubí. | |
![]() | El. připojení Napájecí napětí jednotek je 1×230 V/50 Hz nebo 3×400 V/50 Hz a je závislé na vybavení jednotky. Přívodní kabely, kabely k čidlům, silové kabely k ventilátorům se do jednotky přivádějí přes plastové průchodky ve stěně jednotky. Uvnitř jednotky jsou pro vedení kabelů připraveny gumové průchodky s membránou. | |
![]() | Regulace Jednotka je standardně vybavena regulací Digireg® dle konfigurace jednotky. V případě, že je jednotka vybavena systémem MaR přímo z výrobního závodu, jsou elektricky připojena a odzkoušena všechna čidla a pohony. Ovládací skříň je umístěna na stěně jednotky dle aktuálních prostorových požadavků konkrétního projektu (umístění ovládací skříně systému MaR je nutné specifikovat v objednávce). | |
![]() | Hluk Hluk uvedený v tabulkách představuje hladiny akustického výkonu na jednotlivých hrdlech jednotky s korekcí váhového filtru A a hladinu akustického výkonu pláště celé jednotky. | |
![]() | Varianty Jednotlivé varianty jednotky se rozlišují dle výbavy pomocí kódu. Atypické provedení jednotky zasahující mimo množinu dodávaných variant je nutné konzultovat ještě před objednávkou s výrobním závodem. | |
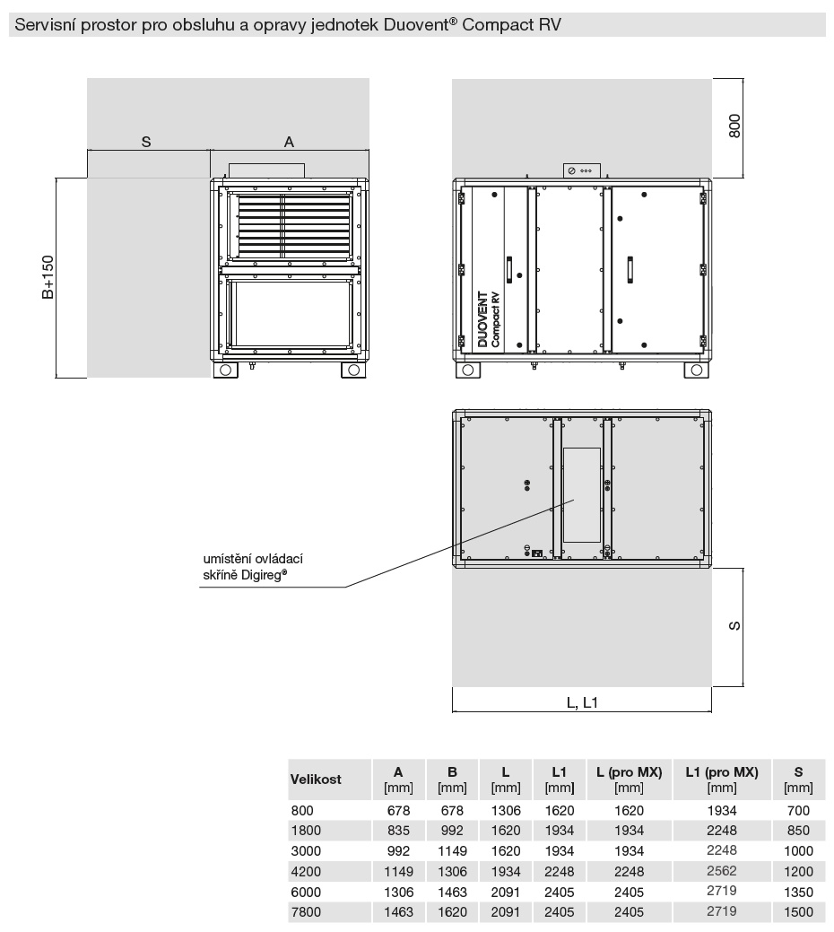
![]() | Montáž Montáž ve vertikální poloze (na podlahu). Konkrétní rozmístění hrdel vzhledem k obslužné straně jednotky je nutné specifikovat dle tabulky variant umístění hrdel. Před jednotkou je nutné zachovat předepsaný servisní prostor pro potřeby servisních zásahů, výměny filtrů atd. Pod jednotkou musí být prostor pro instalaci sifonu pro odvod kondenzátu. Jednotku je nutné montovat se spádem 1 % směrem k odvodnímu hrdlu kondenzátu. Potrubí VZT se připojuje na připravená obdélníková hrdla – doporučujeme mezi hrdla a jednotku montovat pružné manžety pro eliminaci přenosu vibrací z jednotky do potrubí. Obdélníková hrdla jsou vybavena standardní přírubou 20 mm. Nástřešní venkovní provedení jednotek (ROOFPACK-A a ROOFPACK-B) je nutné konzultovat s výrobním závodem před objednávkou. | |
![]() | Informace Jednotka je určena pro větrání komerčních prostor. Montážní varianty umožňují přizpůsobení požadavkům stavby. Jednotka je určena pro trvalý provoz. | |
![]() | Podmínky záruky Zařízení DUOVENT® COMPACT RV včetně řídicího systému DVAV, DCAV a DCOP musí být uvedeno do provozu výhradně Prodávajícím anebo osobou k tomu Prodávajícím určenou. Nedodržení této podmínky má za následek zánik práv Kupujícího z vadného plnění a ze Záruky za jakost. Bližší podmínky stanovuje Reklamační řád Prodávajícího. | |
| Hz | 63 | 125 | 250 | 500 | 1000 | 2000 | 4000 | 8000 | Lwa |
|---|---|---|---|---|---|---|---|---|---|
| Lwa - čerstvý | 38 | 43 | 66 | 65 | 62 | 61 | 55 | 53 | 70 |
| Lwa - přívod | 45 | 53 | 72 | 74 | 79 | 76 | 69 | 68 | 82 |
| Lwa - odtah | 38 | 46 | 65 | 65 | 61 | 60 | 54 | 53 | 70 |
| Lwa - odpad | 46 | 57 | 74 | 77 | 81 | 78 | 72 | 72 | 85 |
| Lwa - plášť* | 41 | 54 | 69 | 62 | 58 | 49 | 37 | 32 | 70 |
* Útlum pláště s hodnotou De dle EN1886. Údaje pro konfiguraci: PŘÍVOD-KL.PR.+M7+RV+DCC+DCA / ODVOD-KL.ODV.+M5+RV






Ecodesign












