DUOVENT MODULAR DV 12000 DI heat recovery unitVětrací jednotka s rekuperací tepla
Catalog sheet | ![]() | Service instructions | ![]() | Ecodesign | ![]() | 2D/3D CAD | – | Toto zboží není možno objednat přes internet, kontaktujte naše obchodní oddělení nebo navštivte naše pobočky. |
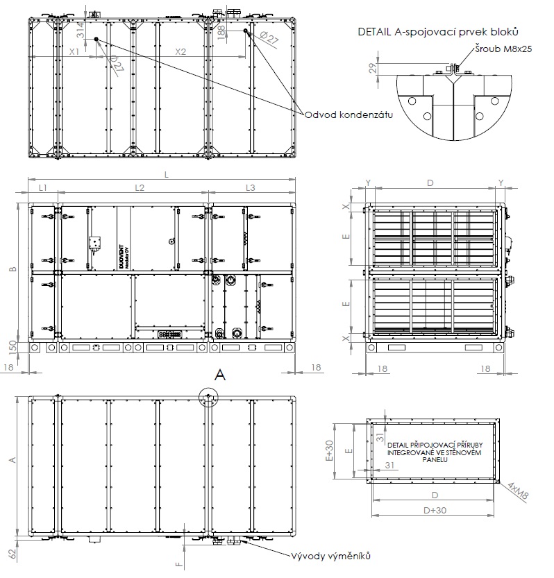
| A [mm] | B [mm] | D [mm] | E [mm] | F [mm] | L [mm] | L1 [mm] | L2 [mm] | L3 [mm] | X [mm] | Y [mm] | X1 [mm] | X2 [mm] |
|---|---|---|---|---|---|---|---|---|---|---|---|---|
| 1934 | 1934 | 1650 | 700 | 132 | 3604 | 442 | 1934 | 1228 | 146 | 142,0 | 858 | 2018 |
| nominální průtok [m3/h] | napětí [V / Hz] | vent. přívod/odvod - max. příkon [W] | vent. přívod/odvod - proud [A] | ohřívač - výkon* [kW] | ohřívač - proud [A] | výkon chladiče* [kW] | úččinnost [%] | max. průtok vzduchu jedn.** [m3/h] | DGIREG | hmot.*** [kg] |
|---|---|---|---|---|---|---|---|---|---|---|
| 12000 | 3x400 V / 50 Hz | 5738/4297 | 8,3/6,2 | 45,0 | 65,0 | - | 94,3 | 13500 | M3-E72 | 1188-1321 |
* při jmenovitém průtoku vzduchu, te = -12 °C / 90 % r.v., ti = 22 °C / 50 % r.v., te = 35 °C/35 % r.v. (LÉTO); ** pro uspořádání – přívod: filtr F7+DV+DCB, odvod: filtr M5+DV; *** v závislosti na výbavě jednotky (bez MaR) Výkon vodního chladiče DCC pro te = 35 °C / 35 % r.v., tw = 6/12 °C. Výkon vodního ohřívače DCA pro te = 10 °C, tw = 80/60 °C. Výkon vodního ohřívače DCB pro te = 10 °C, tw = 45/35 °C. Výkon přímého výparníku DX pro chladivo R410A, te = 35 °C / 35 % r.v., tvyp= 6 °C.
![]() | Skříň Patentovaný modulární systém ISOSTREAM® se stěnovými panely tl. 45 mm, které jsou vyrobeny z ocelového pozinkovaného plechu s vnějším lakováním v odstínu RAL9002 (šedobílá). Panely jsou uvnitř vyplněné zvukovou a tepelnou izolací z nehořlavé skelné minerální vlny. Pro usnadnění servisu je skříň jednotky vybavena otevíratelnými dveřmi se zámky nebo plně snímatelnými panely. Rám jednotky je vyroben z hliníkových profilů, stěnové panely jsou do rámu přišroubovány. Z obslužné strany je skříň jednotky vybavena otevíratelnými dveřmi s přítlačnými zámky, alternativně lze dodat plně snímatelné panely. Vývody kondenzátu od rekuperačního výměníku a chladiče jsou umístěny vždy ve spodním panelu jednotky a jsou připravené pro napojení protizápachového sifonu. Na přání zákazníka je možné plášť jednotky opatřit atypickou povrchovou ochranou s vyšší korozní odolností. | |
![]() | Ventilátory Na přívodní a odvodní straně jednotky jsou montovány ventilátory s dozadu zahnutými lopatkami. Oběžné kolo je vyrobeno z kompozitního materiálu a je staticky a dynamicky vyváženo. | |
![]() | Motor Na oběžném kole ventilátoru je napřímo namontován EC motor. Motor ventilátoru je možné plynule řídit externím signálem 0…10 V. Motor je vybaven vlastní vestavěnou tepelnou ochranou. Třída účinnosti motoru IE4, krytí elektromotoru IP54. | |
![]() | Rekuperace Rekuperační protiproudý výměník se zcela oddělenými proudy přívodního a odvodního vzduchu je vyroben z hliníku. Součástí rekuperátoru je bypass s klapkou, která plně řídí vstup vzduchu do výměníku nebo do bypassu. Na přání je možné rekuperátor dovybavit cirkulační nebo směšovací klapkou (v kódu jednotky označeno C nebo MX). | |
![]() | Ohřívače / chladiče vzduchu Jednotka je v závislosti na provedení vybavena vodním nebo elektrickým ohřívačem vzduchu. Pro potřeby chlazení vzduchu je montován vodní chladič nebo přímý výparník. Pro možnost přímého ohřevu a chlazení je možné výparník vyrobit jako reverzibilní a volit provoz s bivalentním ohřevem vodním nebo elektrickým. Výparníky jsou standardně navrženy pro chladivo R410A a R32. Vodní ohřívače, chladiče a výparníky mají standardně měděné trubky a hliníkové lamely v pozinkovaném ocelovém rámu. Pro potřeby vyšší korozní ochrany je možné výměníky opatřit dodatečnou antikorozní ochranou. Elektrické ohřívače mají standardně hladké topné tyče a jsou vybaveny provozním termostatem se spouštěcí teplotou 60 °C a havarijním termostatem s ručním resetem a spouštěcí teplotou 120 °C. | |
![]() | Filtr Na sání čerstvého vzduchu a sání odtahového vzduchu je možné umístit 2 sady kompaktních filtračních článků různých tříd filtrace tloušťky 48 mm nebo 1 sadu filtračních článků tloušťky 96 mm. Dostupné jsou filtry v třídách filtrace od G4 do F9. Přístup k filtrům je přes revizní dveře na obslužné straně jednotky. | |
![]() | Klapky Hliníkové regulační klapky s přípravou pro osazení servopohonu jsou integrovány na sání čerstvého a výtlaku odpadního vzduchu. Klapky splňují třídu těsnosti 2 dle EN1751. Na přání je možné jednotku dovybavit klapkami v třídě těsnosti 3. | |
![]() | El. připojení Napájecí napětí je 3× 400 V / 50 Hz. Přívodní kabely, kabely k čidlům a silové kabely se do jednotky přivádějí přes plastové průchodky ve stěně jednotky. Uvnitř jednotky jsou pro vedení kabelů připraveny gumové průchodky s membránou. | |
![]() | Regulace Jednotka je standardně vybavena digitální regulací Digireg® dle konfigurace jednotky. V případě, že je jednotka vybavena systémem MaR přímo z výrobního závodu, jsou elektricky připojena a odzkoušena všechna čidla a pohony. Ovládací skříň je umístěna na boční obslužné stěně jednotky (v případě atypického umístění ovládací skříně systému MaR je nutné toto konzultovat s výrobcem a specifikovat v objednávce). | |
![]() | Hluk Hlukové údaje uvedené v tabulkách představují hladiny akustického výkonu na jednotlivých hrdlech jednotky s korekcí váhového filtru A a hladinu akustického výkonu pláště celé jednotky. Akustické parametry jsou v toleranci ±3 dB. | |
![]() | Varianty Jednotlivé varianty jednotky se rozlišují dle výbavy pomocí kódu. Atypické provedení je nutné konzultovat. | |
![]() | Montáž Ve vertikální poloze na podlahu strojovny nebo střechu budovy. Konkrétní rozmístění hrdel přívodního a odvodního vzduchu vzhledem k obslužné straně je nutné specifikovat viz. dále. Před jednotkou je nutné zachovat předepsaný servisní prostor pro potřeby servisních zásahů, výměny filtrů apod. Pod jednotkou musí být prostor pro instalaci sifonu pro odvod kondenzátu. Jednotku je nutné montovat se spádem 1° směrem k odvodnímu hrdlu kondenzátu na straně chladiče vzduchu. Potrubí VZT se připojuje na připravená v sendvičovém panelu integrovaná obdélníková hrdla. Doporučujeme mezi hrdla potrubí a jednotku montovat pružné manžety pro eliminaci přenosu vibrací z jednotky do potrubí. Obdélníková hrdla jsou integrována ve stěnovém sendvičovém panelu jednotku a rozteč rohových připojovacích otvorů je optimalizována pro připojovací příruby P30 (30 mm výška příruby). | |
![]() | Příslušenství • SPIRO kruhové spiro potrubí a tvarovky (K 7.3) • IAE pružné spojky (K 7.1) • IAA tlumiče hluku (K 7.1) • TSK zpětné klapky (K 7.1) • MSK, IJK škrticí a směšovací klapky (K 7.1) • talířové ventily, anemostaty, dýzy, mřížky (K 7.2) • protidešťové žaluzie (K 7.1) • ESU směšovací uzly (K 7.1) • SF-P sifon podtlakový (K 7.1) • Digireg® digitální regulační systém pro jednotky s ohřevem i chlazením, ovladač s dotykovým displejem (K 9) • JTR triakový spínač pro řízení výkonu elektrického ohřívače (K 9) • HIG, HYG hygrostaty (K 8.2) • AIRSENS, EDF-CO2, SQA čidla CO2 (K 8.2) • RTR termostaty (K 8.2) • DTS PSA tlakové snímače (K 8.2) • servopohony (K 8.2) | |
![]() | Informace Jednotka je určena pro větrání komerčních prostor. Jednotka je určena pro trvalý provoz. Dodávka jednotky je ve 3 samostatných blocích. Spojení bloků je věcí instalačního postupu při instalaci jednotky. Spojovací materiál je součástí dodávky. Jednotky v provedení PROCESS (tzn. mimo oblast platnosti nařízení EK č.1253/2014) je nutné konzultovat. | |
![]() | Podmínky záruky Zařízení DUOVENT® MODULAR DV včetně řídicího systému DVAV, DCAV a DCOP musí být uvedeno do provozu výhradně Prodávajícím anebo osobou k tomu Prodávajícím určenou. Nedodržení této podmínky má za následek zánik práv Kupujícího z vadného plnění a ze Záruky za jakost. Bližší podmínky stanovuje Reklamační řád Prodávajícího. | |
| Hz | 63 | 125 | 250 | 500 | 1000 | 2000 | 4000 | 8000 | LwA |
|---|---|---|---|---|---|---|---|---|---|
| LwA - čerstvý | 41 | 47 | 67 | 65 | 62 | 63 | 56 | 54 | 71 |
| LwA - přívod | 55 | 62 | 79 | 82 | 86 | 84 | 78 | 75 | 90 |
| LwA - odtah | 44 | 51 | 73 | 71 | 68 | 68 | 63 | 64 | 77 |
| LwA - odpad | 49 | 57 | 74 | 76 | 79 | 76 | 69 | 69 | 83 |
| LwA - plášť* | 47 | 58 | 73 | 66 | 61 | 53 | 41 | 35 | 74 |
Údaje pro konfiguraci (integrované klapky, chladič vodní-DCC, ohřívač vodní DCA, filtrační třída F7/M5) pro Vnom = 12000 m3/h; * útlum pláště s hodnotou De dle EN1886






Ecodesign















