EUI 100 N 2-15 AWE air curtainDveřní clony pro náročné interiéry
Catalog sheet | ![]() | Service instructions | ![]() | 2D/3D CAD | – | Toto zboží není možno objednat přes internet, kontaktujte naše obchodní oddělení nebo navštivte naše pobočky. |
Technical parameters
| Vzduchový výkon max/min [m3/h] | Příkon [kW] | Proud [A] | Napětí [V] | Výkon ohř. [kW] | Průtok ohř. [m3/h] | Tlaková ztráta [kPa] | Připojení [coul] | Hmotnost bez/s AK [kg] | Hluk min/max [dB(A)] |
|---|---|---|---|---|---|---|---|---|---|
| 4800/1950 | 2x0.65 | 2x3.6 | 230 | 45,2 | 1,944 | 3 | 1 | 86/100 | 46/62 |
![]() | Skříň je z ocelového plechu laminovaného vrstvou umělé hmoty bez viditelných šroubových nebo nýtových spojů. Skříň se dodává v bílé barvě RAL 9010, dekorativní sací mřížka je opatřena práškovým lakem v odstínu RAL 7042, výdechový otvor je osazen tvarovanými lamelami a rámečkem z eloxovaného hliníku v přírodním odstínu. Na objednávku lze dodat v libovolném odstínu RAL. Skříně se dodávají v několika typech podle způsobu montáže a požadovaného stínícího účinku. Pro montáž do podhledu se dodávají nástavce nebo ozdobný rám. Clony s vodním ohřívačem je vhodné objednat vč. regenerovatelného filtru. Pro clony s elektrickým ohřívačem se filtr nedodává. | |
![]() | Ventilátory Jsou použity vysoce výkonné oboustranně sací radiální ventilátory, pětiotáčkové nebo tříotáčkové (u clon s elektrickým ohřívačem) motory s termokontakty. Krytí IP20. | |
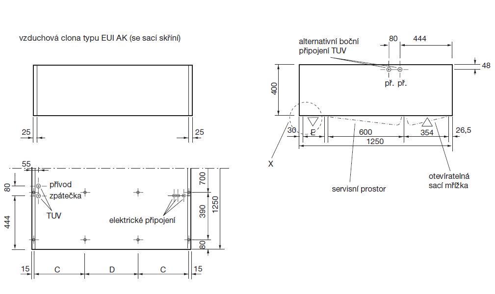
![]() | El. připojení Kabelové průchodky jsou umístěny v pravém konci skříně shora. Atypické pravé provedení je zrcadlově převráceno. | |
![]() | Regulace otáček Clony s vodním ohřívačem se ovládají regulátorem STM5, který umožňuje start a vypnutí a přepínání ventilátorů v pěti stupních. Ohřívač se reguluje pomocí termostatického ventilu. Není-li ovladač předepsán je clona dodána bez řídícího obvodu. Ventilátory a případně kontakty protimrazového termostatu jsou vyvedeny pouze do svorkovnice. V případě použití clony v montáži AWE, je třeba chránit vodní ohřívače proti zamrznutí. K tomu slouží protimrazový termostat, který je namontován a zapojen přímo ve výrobě. | |
![]() | Montáž Možnosti zavěšení obrázek způsoby montáže. Podrobný montážní návod je dodáván s každou clonou. Clony se montují do volného prostoru i do podhledu, vodorovně i svisle. Vzduchovou cestu clonou je možno volit přímou, s úhlem 90˚ a nebo 180˚. | |
![]() | Pokyny Verze s vodním ohřívačem je určena pro běžné i nízkoteplotní rozvody TUV. Pro regulaci lze objednat termostatický ventil s 2 m dlouhou kapilárou, který se montuje vně clony. Ventil má pracovní rozsah 20 až 50˚ C a z výroby je nastaven na 32˚ C (k této hodnotě jsou vztaženy parametry ohřívače). Připojení TUV je standardně vlevo shora, na zvláštní objednávku je možné dodat pravé provedení nebo připojení zboku. Parametry vodních ohřívačů jsou vypočteny pro obvyklé podmínky – teplotní spád 80/60 ˚C a 70/50 ˚C, vstupní teplota vzduchu +18˚C pro STE a +5˚C pro AWE, výstupní teplota +32 ˚C. | |





Service instructions






