RME 250/200 Ekonovent air handline unitMalé přívodní jednotky s elektrickým ohřevem
Catalog sheet | ![]() | Service instructions | ![]() | 2D/3D CAD | – | Toto zboží není možno objednat přes internet, kontaktujte naše obchodní oddělení nebo navštivte naše pobočky. |
Technical parameters
| nominální průtok vzduchu [m3/h] | otáčky / řídící napětí** [min-1/V] | EC motor - napětí [V/Hz] | EC motor - proud NOM/MAX*** [A] | EC motor - výkon NOM/MAX*** [W] | ohřívač - napětí [V/Hz] | ohřívač - proud [A] | ohřívač - výkon* [kW] | hmotnost [kg] | Digireg® |
|---|---|---|---|---|---|---|---|---|---|
| 250 | 2791/8,6 | 1x230 / 50 | 0,25/0,3 | 28/34 | 1x230 / 50 | 9 | 2 | 32 | M1-E2 |
* Výkon vodního ohřívače při nominálním průtoku vzduchu, při te = –12 °C/90 % r.v. a pro teplotní spád vody 80/60 °C; ** Otáčky a řídící napětí EC motoru při nominálním průtoku vzduchu; *** NOM – výkon a proud při nominálním průtoku vzduchu a nominálních otáčkách. MAX – výkon a proud při maximálních otáčkách ventilátoru
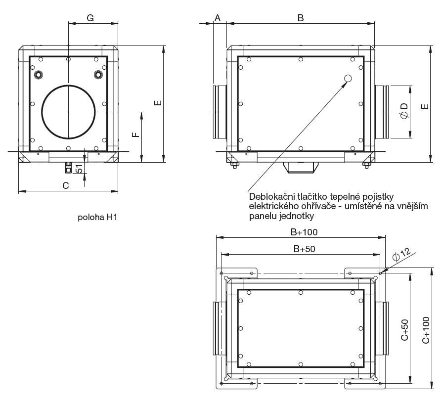
![]() | Skříň Stěnové panely tloušťky 45 mm jsou vyrobeny z ocelového pozinkovaného plechu s vnějším lakováním v odstínu RAL 9002. Panely jsou uvnitř vyplněné zvukovou a tepelnou izolací z nehořlavé skelné minerální vlny. Pro usnadnění servisu je skříň jednotky vybavena snímatelnými dveřmi se zámky. Rám jednotky je vyroben z hliníkových profilů, stěnové panely jsou do rámu přišroubovány. Připojovací hrdla vodních ohřívačů jsou vyvedena na vnější plášť jednotky. Skříň je opatřena 4 kusy závěsů s otvory Ø 12 mm pro podstropní montáž jednotky. | |
![]() | Ventilátory Stěnové panely tloušťky 45 mm jsou vyrobeny z ocelového pozinkovaného plechu s vnějším lakováním v odstínu RAL 9002. Panely jsou uvnitř vyplněné zvukovou a tepelnou izolací z nehořlavé skelné minerální vlny. Pro usnadnění servisu je skříň jednotky vybavena snímatelnými dveřmi se zámky. Rám jednotky je vyroben z hliníkových profilů, stěnové panely jsou do rámu přišroubovány. Připojovací hrdla vodních ohřívačů jsou vyvedena na vnější plášť jednotky. Skříň je opatřena 4 kusy závěsů s otvory Ø 12 mm pro podstropní montáž jednotky. | |
![]() | Motor Na oběžném kole ventilátoru je napřímo namontován EC motor. Motor ventilátoru je možné plynule řídit externím signálem 0…10 V nebo PWM. Motor je vybaven vlastní vestavěnou tepelnou ochranou. Krytí elektromotoru IP44. | |
![]() | Ohřívač Vodní ohřívače jsou navrženy pro teplotní spád topné vody dT = 20 K (80/60 °C) pro vstupní teplotu vzduchu te = –12 °C/90 % r.v. při nominálním průtoku vzduchu. Elektrické ohřívače jsou navrženy pro vstupní teplotu vzduchu te = –12 °C/90% r.v. při nominálním průtoku vzduchu a jsou vybaveny provozním a havarijním termostatem. | |
![]() | Filtr V jednotce je umístěn jeden nebo více filtračních článků třídy filtrace F7 (na přání filtr třídy G4 až F9), které jsou situovány do jedné filtrační stěny. Filtr je vyroben z polypropylenového filtračního materiálu. Přístup k filtrům je přes revizní dveře na obslužné straně jednotky. Jednotku je možné doplnit v případě vícestupňové filtrace filtračními kazetami MFL s filtračními vložkami MFR, které jsou určeny pro montáž do potrubí. | |
![]() | El. připojení Napájecí napětí jednotek je 1 x 230 V / 50 Hz nebo 3 x 400 V / 50 Hz a je závislé na vybavení jednotky. Přívodní kabely, kabely k čidlům, silové kabely k ventilátorům se do jednotky přivádějí přes plastové průchodky ve stěně jednotky, které nejsou součástí dodávky jednotky. Svorkovnice elektrického ohřívače u jednotek RME je přístupná po sejmutí vnějšího krytu. Elektromotor ventilátoru má přívodní napájecí kabel vyveden do plastové rozvodnice se svorkovnicí, která je umístěna uvnitř jednotky. | |
![]() | Regulace Jednotka je standardně dodávána bez regulace. V případě požadavku je jednotka vybavena regulací Digireg®. V případě, že je jednotka vybavena systémem MaR přímo z výrobního závodu, jsou elektricky připojena a odzkoušena všechna čidla a pohony. Ovládací skříň je umístěna na stěně jednotky dle aktuálních prostorových požadavků konkrétního projektu (umístění ovládací skříně systému MaR je nutné specifikovat v objednávce). | |
![]() | Hluk Hluk uvedený v tabulkách představuje hladiny akustického výkonu na sání a výtlaku jednotky s korekcí váhového filtru A a hladinu akustického tlaku ve vzdálenosti 1 m od obslužné strany jednotky (ve volném poli Q = 2). | |
![]() | Varianty • RME - se zabudovaným elektrickým ohřevem a filtrem • RMW - se zabudovaným vodním ohřevem a filtrem • RMK - přívodní jednotka s filtrem bez ohřívače | |
![]() | Montáž Montáž je možná v horizontální poloze s obslužnou stranou z boční strany jednotky (označení v kódu jednotky H2) nebo ze spodní strany jednotky (označení v kódu jednotky H1). Dále je možné rozlišit pravé (P) a levé provedení (L) dle pozice vývodů vodního ohřívače nebo pozice připojovací svorkovnice elektrického ohřívače (pro vel. 2400, 3000, 4000, 6000). Pozice L nebo P se určuje při pohledu na čelní vstupní plochu ohřívače ve směru proudění vzduchu. Vedle jednotky je třeba mít manipulační prostor pro sejmutí víka a vyjmutí filtrů a pro provádění periodických revizí elektroinstalace. | |
![]() | Informace Jednotka je určena pro větrání komerčních prostor. Dodávku jendotky do venkovního prostředí je potřeba konzultovat. | |
![]() | Podmínky záruky Zařízení RME, RMW, RMK Ekonovent® včetně řídicího systému DVAV, DCAV a DCOP musí být uvedeno do provozu výhradně Prodávajícím anebo osobou k tomu Prodávajícím určenou. Nedodržení této podmínky má za následek zánik práv Kupujícího z vadného plnění a ze Záruky za jakost. Bližší podmínky stanovuje Reklamační řád Prodávajícího. | |
Hladina akustického výkonu v oktávových pásmech [dB(A)]
| Hz | 63 | 125 | 250 | 500 | 1000 | 2000 | 4000 | 8000 | LwA |
|---|---|---|---|---|---|---|---|---|---|
| Lw - sání | 31 | 42 | 52 | 53 | 58 | 60 | 55 | 45 | 64 |
| Lw - výtlak | 31 | 42 | 55 | 56 | 60 | 66 | 61 | 46 | 68 |
| Lp - okolí, 1 m | 14 | 28 | 38 | 30 | 25 | 25 | 14 | 4 | 39 |
pro Q = 250 m3/h a n = 2791min-1, U = 8,6 V
Additional pictures
typový klíč pro objednání | montážní a servisní prostor | možnosti instalace | charakteristiky přívodních jednotek (UVU) dle nařízení EK č.1253/2014 | |||
příklady provedení jednotek | tabulky parametrů ohřívačů: |
Acessories
Digireg® M1-E2 digital control system
DTS PSA 30/300 air pressure sensors 30-300 Pa
HIG 2 electronic humidistat
KAA 200 antivibration coupling
MAA 200/600 sound attenuator
MFL 200 filter cassette EU 3 (G4)
MKF 200 CFC cooler
MKW 200 water cooler
MSK 200 damper
MSKT 200 damper
MTS 200 sound attenuator
RSK 200 backdraft shutter
RTR 6721 area thermostat
SPIRO 200 spiro duct (3 m)
SQA air quality sensor
TSK 200 backdraft shutter



















