RME 6000 Ekonovent air handline unitMalé přívodní jednotky s elektrickým ohřevem
Catalog sheet | ![]() | Service instructions | ![]() | 2D/3D CAD | – | Toto zboží není možno objednat přes internet, kontaktujte naše obchodní oddělení nebo navštivte naše pobočky. |
Technical parameters
| nominální průtok vzduchu [m3/h] | otáčky / řídící napětí** [min-1/V] | EC motor - napětí [V/Hz] | EC motor - proud NOM/MAX*** [A] | EC motor - výkon NOM/MAX*** [W] | ohřívač - napětí [V/Hz] | ohřívač - proud [A] | ohřívač - výkon* [kW] | hmotnost [kg] | Digireg® |
|---|---|---|---|---|---|---|---|---|---|
| 5800 | 1450/9,6 | 1x230 / 50 | 2,7/3,0 | 638/720 | 3x400 / 50 | 70 | 45 | 161 | M3-E72 |
* Výkon vodního ohřívače při nominálním průtoku vzduchu, při te = –12 °C/90 % r.v. a pro teplotní spád vody 80/60 °C; ** Otáčky a řídící napětí EC motoru při nominálním průtoku vzduchu; *** NOM – výkon a proud při nominálním průtoku vzduchu a nominálních otáčkách. MAX – výkon a proud při maximálních otáčkách ventilátoru
![]() | Skříň Stěnové panely tloušťky 45 mm jsou vyrobeny z ocelového pozinkovaného plechu s vnějším lakováním v odstínu RAL 9002. Panely jsou uvnitř vyplněné zvukovou a tepelnou izolací z nehořlavé skelné minerální vlny. Pro usnadnění servisu je skříň jednotky vybavena snímatelnými dveřmi se zámky. Rám jednotky je vyroben z hliníkových profilů, stěnové panely jsou do rámu přišroubovány. Připojovací hrdla vodních ohřívačů jsou vyvedena na vnější plášť jednotky. Skříň je opatřena 4 kusy závěsů s otvory Ø 12 mm pro podstropní montáž jednotky. | |
![]() | Ventilátory Stěnové panely tloušťky 45 mm jsou vyrobeny z ocelového pozinkovaného plechu s vnějším lakováním v odstínu RAL 9002. Panely jsou uvnitř vyplněné zvukovou a tepelnou izolací z nehořlavé skelné minerální vlny. Pro usnadnění servisu je skříň jednotky vybavena snímatelnými dveřmi se zámky. Rám jednotky je vyroben z hliníkových profilů, stěnové panely jsou do rámu přišroubovány. Připojovací hrdla vodních ohřívačů jsou vyvedena na vnější plášť jednotky. Skříň je opatřena 4 kusy závěsů s otvory Ø 12 mm pro podstropní montáž jednotky. | |
![]() | Motor Na oběžném kole ventilátoru je napřímo namontován EC motor. Motor ventilátoru je možné plynule řídit externím signálem 0…10 V nebo PWM. Motor je vybaven vlastní vestavěnou tepelnou ochranou. Krytí elektromotoru IP44. | |
![]() | Ohřívač Vodní ohřívače jsou navrženy pro teplotní spád topné vody dT = 20 K (80/60 °C) pro vstupní teplotu vzduchu te = –12 °C/90 % r.v. při nominálním průtoku vzduchu. Elektrické ohřívače jsou navrženy pro vstupní teplotu vzduchu te = –12 °C/90% r.v. při nominálním průtoku vzduchu a jsou vybaveny provozním a havarijním termostatem. | |
![]() | Filtr V jednotce je umístěn jeden nebo více filtračních článků třídy filtrace F7 (na přání filtr třídy G4 až F9), které jsou situovány do jedné filtrační stěny. Filtr je vyroben z polypropylenového filtračního materiálu. Přístup k filtrům je přes revizní dveře na obslužné straně jednotky. Jednotku je možné doplnit v případě vícestupňové filtrace filtračními kazetami MFL s filtračními vložkami MFR, které jsou určeny pro montáž do potrubí. | |
![]() | El. připojení Napájecí napětí jednotek je 1 x 230 V / 50 Hz nebo 3 x 400 V / 50 Hz a je závislé na vybavení jednotky. Přívodní kabely, kabely k čidlům, silové kabely k ventilátorům se do jednotky přivádějí přes plastové průchodky ve stěně jednotky, které nejsou součástí dodávky jednotky. Svorkovnice elektrického ohřívače u jednotek RME je přístupná po sejmutí vnějšího krytu. Elektromotor ventilátoru má přívodní napájecí kabel vyveden do plastové rozvodnice se svorkovnicí, která je umístěna uvnitř jednotky. | |
![]() | Regulace Jednotka je standardně dodávána bez regulace. V případě požadavku je jednotka vybavena regulací Digireg®. V případě, že je jednotka vybavena systémem MaR přímo z výrobního závodu, jsou elektricky připojena a odzkoušena všechna čidla a pohony. Ovládací skříň je umístěna na stěně jednotky dle aktuálních prostorových požadavků konkrétního projektu (umístění ovládací skříně systému MaR je nutné specifikovat v objednávce). | |
![]() | Hluk Hluk uvedený v tabulkách představuje hladiny akustického výkonu na sání a výtlaku jednotky s korekcí váhového filtru A a hladinu akustického tlaku ve vzdálenosti 1 m od obslužné strany jednotky (ve volném poli Q = 2). | |
![]() | Varianty • RME - se zabudovaným elektrickým ohřevem a filtrem • RMW - se zabudovaným vodním ohřevem a filtrem • RMK - přívodní jednotka s filtrem bez ohřívače | |
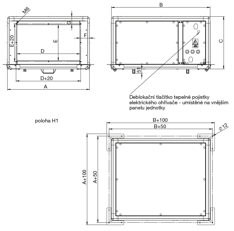
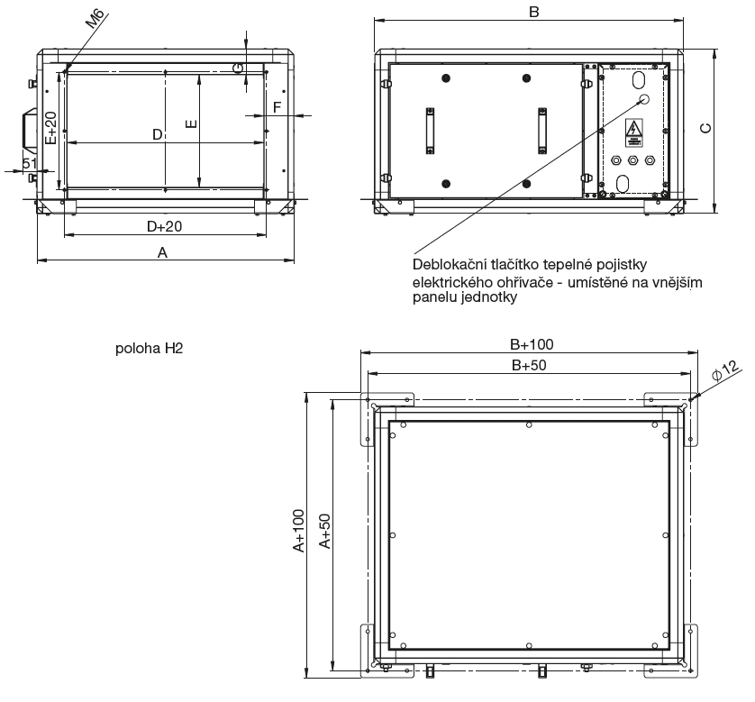
![]() | Montáž Montáž je možná v horizontální poloze s obslužnou stranou z boční strany jednotky (označení v kódu jednotky H2) nebo ze spodní strany jednotky (označení v kódu jednotky H1). Dále je možné rozlišit pravé (P) a levé provedení (L) dle pozice vývodů vodního ohřívače nebo pozice připojovací svorkovnice elektrického ohřívače (pro vel. 2400, 3000, 4000, 6000). Pozice L nebo P se určuje při pohledu na čelní vstupní plochu ohřívače ve směru proudění vzduchu. Vedle jednotky je třeba mít manipulační prostor pro sejmutí víka a vyjmutí filtrů a pro provádění periodických revizí elektroinstalace. | |
![]() | Informace Jednotka je určena pro větrání komerčních prostor. Dodávku jendotky do venkovního prostředí je potřeba konzultovat. | |
![]() | Podmínky záruky Zařízení RME, RMW, RMK Ekonovent® včetně řídicího systému DVAV, DCAV a DCOP musí být uvedeno do provozu výhradně Prodávajícím anebo osobou k tomu Prodávajícím určenou. Nedodržení této podmínky má za následek zánik práv Kupujícího z vadného plnění a ze Záruky za jakost. Bližší podmínky stanovuje Reklamační řád Prodávajícího. | |
Hladina akustického výkonu v oktávových pásmech [dB(A)]
| Hz | 63 | 125 | 250 | 500 | 1000 | 2000 | 4000 | 8000 | LwA |
|---|---|---|---|---|---|---|---|---|---|
| Lw - sání | 43 | 60 | 63 | 68 | 68 | 74 | 69 | 56 | 77 |
| Lw - výtlak | 45 | 66 | 70 | 75 | 77 | 77 | 73 | 61 | 82 |
| Lp - okolí, 1 m | 28 | 52 | 53 | 49 | 42 | 36 | 26 | 10 | 57 |
pro Q = 6000 m3/h a n = 1480 min-1, U = 10 V
Additional pictures
typový klíč pro objednání | montážní a servisní prostor | možnosti instalace | charakteristiky přívodních jednotek (UVU) dle nařízení EK č.1253/2014 | |||
příklady provedení jednotek | tabulky parametrů ohřívačů |



















